产品型号
产品名称 | 型号 |
直读远传水表 | KDY |
直读远传热水表 | KDYR |
主要特点
1.光电直读技术,直接读取水表的窗口值,无累计误差。
2.表内无电源,直读装置仅在抄表瞬间加电工作。
3.直读水表无需初始化,抄表系统维护工作量小。
4.表计地址可以灵活设定,每只表计有唯一地址,方便管理维护。
5.M-BUS总线标准,普通两芯线缆链接,不区分正负极,同时完成数据通讯和提供表计电源功能。
6.树型结构布线,方便施工维护执行标准。
7.防水设计:产品采用整体密封防水工艺。
主要技术参数
项目 | 技术参数 | |
公称直径DN | 常用流量Q3 (m3/h) | 连接螺纹 |
15 | 2.5 | G3/4 |
20 | 4 | G1 |
25 | 6.3 | G1? |
32 | 10 | G1? |
40 | 16 | G2B |
50 | 25 | G2 1/2B或法兰 |
65 | 40 | 法兰 |
80 | 63 | |
100 | 100 | |
125 | 160 | |
150 | 250 | |
计量等级 | 2.0级,R80/R100 | |
压力损失 | ≤0.063 MPa | |
工作压力(MPa) | ≤1.6MPa | |
使用条件 | 冷水水表介质温度:0.1℃~40℃;相对温度<93%; | |
气候和机械环境条件 | B类 | |
电磁环境条件等级 | E1:住宅、商业、轻工业 | |
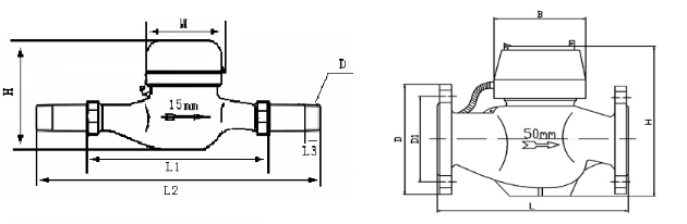
水平安装直读远传水表外形尺寸

示图 | 口径 | L1 | L2 | L3 | H | W | D |
mm | |||||||
(1) | DN15 | 165 | 255 | 14 | 123 | 82 | R1/2″ |
(1) | DN20 | 195 | 295 | 16 | 123 | 82 | R3/4″ |
(1) | DN25 | 225 | 341 | 18 | 125 | 86 | R1″ |
(1) | DN32 | 230 | 365 | 20 | 137 | 90 | R1 1/4″ |
( ) | DN40 | 245 | 374 | 21 | 180 | 120 | R1 1/2″ |
示图 | 口径 | L | B | H | D | ||
(2) | DN50 | 280 | 135 | 195 | 法兰连接按GB/T17241.2-1998 | ||
水表型号 | 公称直径DN | 长度L(mm) | 高度H(mm) | 拆卸高度>G(mm) | 连接法兰按 GB/T 17241.6-1998 | ||
法兰外径D(mm) | 螺栓孔中心直径D1(mm) | 单边螺栓与孔直径 | |||||
KDY | 65 | 200 | 218 | 236 | 185 | 145 | 4-?19 |
80 | 225 | 280 | 341 | 200 | 160 | 8-?19 | |
100 | 250 | 290 | 341 | 220 | 180 | 8-?19 | |
125 | 250 | 310 | 341 | 250 | 210 | 8- ?19 | |
150 | 300 | 320 | 341 | 285 | 240 | 8- ?23 | |
200 | 350 | 364 | 358 | 340 | 295 | 8/12-?23 | |
该尺寸仅供参考,订货时请电话咨询 | |||||||
配套系统设备
产品名称 | 规格 | |
直读远传水表 | KDY | KD型智能管理软件、射频卡读写器具、卡片、接管螺母(法兰盘); |
直读远传热水表 | KDYR | KD型智能管理软件、增强通讯适配器(型号:KDTXSB-1)、远程数据采集器(M-BUS)、接管螺母(法兰盘); |
